1.橋梁安裝
1.1 選點要求
安裝點到水面開闊無遮擋,遠離橋墩,并且河道盡可能平直無落差。
測量位置的選擇與測量流量的準確性有直接的關系,為了得到更加準確的測量結果,安裝位置要盡可能滿足以下條件:
?、?測量位置平直,水流穩定,無石塊阻水,無大漩渦,亂流等現象。
② 測量位置水流集中,渠道寬度穩定。
③ 最好進行硬化處理,渠道斷面規整。
④ 水流順暢,無漂浮懸浮物或其它雜物堆積。
⑤ 安裝位置空曠,四周無遮擋。
⑥ 雷達物位計要往外延伸安裝。
?、?避開高壓線,請不要在高壓線下面安裝。
1.2 橋梁側壁實例安裝圖片



1.3 80G 調頻雷達物位計工作原理
調頻連續波雷達物位計的通用原理為雷達在罐頂發射電磁波,電磁波碰到介質反射后被雷達 接收,接收信號與發射信號之間的頻率差δf與介質表面的距離R成一定比例關系:R=C(速 度)* δf(頻率差)/2/K(調頻斜率)。因為光速 C 和調頻斜率 K已知,因此估算出頻率差 δf,便可得到雷達安裝位置料面的距離 R,再通過已知的罐體總高,減去雷達到料面的空間 距離(簡稱空高),得出料位的高度。
特點:
1. 毫米波雷達,測量精度最高可達±2mm,測量最小盲區為 0.1m。
2. 更小的天線尺寸,滿足了更多的工況場合測量。
3. 多種透鏡天線,更小的發射角,更集中的能量,回波信號更強,同等工礦條件下,相比于 其他雷達產品具有更高的可靠性。
4. 擁有更強的穿透性,在有粘附及凝結的情況下也可以正常使用。
5. 動態信號范圍更大,對于低介電常數介質的測量更加穩定。
6. 多種測量模式,快速測量模式下雷達反應時間小于 1S
型號:DY-HLS03 安裝示意圖


注:雷達天線發射微波時,都有一定發射角。從天線下緣到被測介質表面之間, 及發射微波波束所輻射的區域內不得有障礙物。因此安裝時應盡可能避開遮擋設
施,必要時須進行“虛假回波學習”。安裝儀表時還要注意:最高液位不得進入 測量盲區
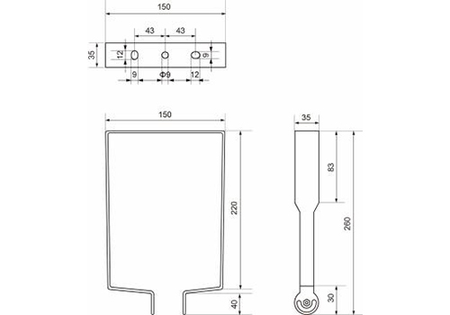
產品尺寸(單位:mm)
l 產品尺寸:

l 龍門框尺寸:

因量程是 200 米,因為 200 米的不能用水位的電路板了,就得用改成物位的電路板。 輸出雙出輸出:4~20mA+RS485 實時監控,要反應快,就不是低功耗了。
數據通過無線遠傳到后端平臺。為了減少日常的維護工作,減少維護成本,降低設備的故障率, 提高有效使用時間,所以決定采用非接觸式的雷達水位計來測量。